Назва проекту : Бартон

  28,120грн - З мансардою
181,7 м²5 Кімнати2 Ванни2 Гаражі Друкувати Дзеркальна версія

Загальна площа – 181,7 м²
Житлова площа – 85,5 м²
Габарити будинку – 15,42 м (довжина)
Габарити будинку – 15,94 м (ширина)

Матеріал фундаменту – монолітний стрічковий залізобетон
Матеріал стін – газоблок 400мм
Матеріал перекриття – монолітний залізобетон
Конструкція даху – кроквяна
Матеріал покрівлі – металочерепиця
Оздоблення фасаду – штукатурка, декоративний камінь, дерево
Оздоблення цокольного поверху – декоративний камінь
Дзеркальне відображення – так
Поверховість – 1+мансарда
Гараж – на 2 авто
Можливість замовити проект в іншому матеріалі – керамоблок, поротерм, цегла
Кількість житлових кімнат – 5
Басейни – ні
Сауна – ні
Камін – так
Зимовий сад – ні
Тераса – так
Друге світло – так
Комплектація проекту – архітектура, конструкція
Компанія АRXproekt

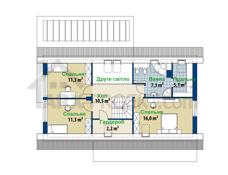
Опис проекту: Цікавий проект будинку з мансардою 16м х 15м, з гаражем для двох авто та 5 кімнатами. Будинок покритий двоскатним дахом. На першому поверсі кухня-їдальня з каміном, переходить в одному просторі у вітальню. З їдальні та вітальні можна вийти на простору терасу, накриту навісом – перголами. Над їдальнею – друге світло. Є санвузол із душевою, та кабінет поруч. Із тамбура перехід у гараж. Позаду гаража є паливна. Біля кухні є невелика кладова. На мансардному поверсі – 3 спальні кімнати та окрема ванна кімната з пральнею.
Компанія Архпроект

Оцініть це

Проекти з подібною площею