Название проекта : Бартон

  28,120грн - С мансардой
181,7 м²5 Кімнати2 Ванни2 Гаражі Печатать Дзеркальна версія

 

Общая площадь — 181,7 м²
Жилая площадь — 85,5 м²
Габариты дома — 15,42 м (длина)
Габариты дома — 15,94 м (ширина)

Материал фундамента — монолитный ленточный железобетон
Материал стен — газоблок 400мм
Материал перекрытия — монолитный железобетон
Конструкция крыши — стропильная
Материал кровли — металлочерепица
Отделка фасада — штукатурка, декоративный камень, дерево
Отделка цокольного этажа — декоративный камень
Зеркальное отражение — да
Этажность — 1 + мансарда
Гараж — на 2 авто
Возможность заказать проект в другом материале — керамоблок, поротерм, кирпич
Количество жилых комнат — 5
Бассейны — нет
Сауна — нет
Камин — да
Зимний сад — нет
Терраса — да
Второй свет — да
Комплектация проекта — архитектура, конструкция
Компания АRXproekt

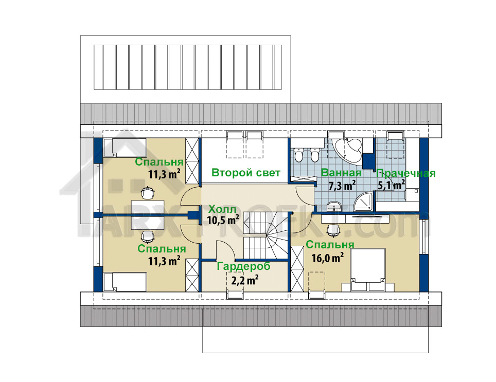
Описание проекта: Интересный проект дома с мансардой 16м х 15м, с гаражом для двух авто, камином и 5 комнатами. Дом покрыт двускатной крышей. На первом этаже кухня-столовая с камином, переходит в одном пространстве в гостиную. Из столовой и гостиной можно выйти на просторную террасу, накрытую навесом — перголами. Над столовой — второй свет. Есть санузел с душевой, и кабинет рядом. С тамбура переход в гараж. Позади гаража есть топочная. У кухни есть небольшая кладовая. На мансардном этаже — 3 спальни и отдельная ванная комната с прачечной.
Компания Архпроект

Оцініть це

Проекты с подобной площадью