Назва проекту : Анфіса
Акція 28,120грн - З мансардою
- Варіант кухні на місці кабінету
Загальна площа – 195,07 м²
Житлова площа – 91,54 м²
Габарити будинку – 15,35 м (довжина)
Габарити будинку – 12,05 м (ширина)
Матеріал фундаменту – монолітний залізобетон
Матеріал стін – цегла
Матеріал перекриття – монолітний залізобетон
Конструкція даху – кроквяна
Матеріал покрівлі – металочерепиця
Оздоблення фасаду – штукатурка, фасадна плитка, дерево
Оздоблення цокольного поверху – фактурна штукатурка
Дзеркальне відображення – так
Поверховість – 1+мансарда
Гараж – на 2 авто
Можливість замовити проект в іншому матеріалі – керамоблок, поротерм, цегла
Кількість житлових кімнат – 5
Басейни – ні
Сауна – ні
Камін – так
Зимовий сад – ні
Тераса – так
Друге світло – ні
Комплектація проекту – архітектура, конструкція
Автор проекту: компанія АRXproekt
Є також інша версія проекту з гаражем на 1 авто – “Анфіса“
Опис проекту: Проект будинку з мансардою для вузької ділянки 12м*15м, з гаражем для двох авто та терасою . Простий у формі будинок покритий двоскатним дахом. На першому поверсі вітальня з каміном, їдальня та кухня. Є також варіант планування із кухнею при вході у будинок, замінюється кабінетом (інтер’єр у галереї фото). Додаткова кімната на першому поверсі з виходом на терасу. У вітальні також є вихід на терасу. Є гостьовий санвузол із душовою, із тамбура перехід у гараж та паливну позаду гаража. У гараж можна потрапити також з кухні через кладову.
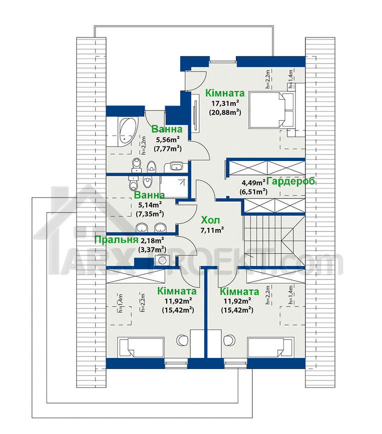
На мансардному поверсі є 3 просторі кімнати. У більшій спальні є додаткова ванна кімната, гардероб при вході та вихід на просторий балкон над терасою. Інші дві спальні мають вихід на балкон над входом та гаражем. Крім того, є загальна ванна кімната та пральня.
Компанія Архпроект













