Название проекта : Сандра
28,120грн - С мансардой
Общая площадь — 171,52 м²
Жилая площадь — 88,14 м²
Габариты дома — 13,85 м (длина)
Габариты дома — 9,95 м (ширина)
Материал фундамента — монолитный железобетон
Материал стен — керамоблок
Материал перекрытия — монолитный ж / б
Конструкция крыши — стропильная
Материал кровли — фальц
Отделка фасада — штукатурка
Отделка цокольного этажа — фактурная штукатурка
Зеркальное отражение — да
Этажность — 1 + мансарда
Гараж — да
Возможность заказать проект в другом материале — керамоблок, поротерм, кирпич
Количество жилых комнат — 5
Бассейны — нет
Сауна — нет
Камин — да
Зимний сад — нет
Терраса — да
Второй свет — нет
Комплектация проекта — архитектура, конструкция
Компания АRXproekt
Проект дома «Сандра» есть также в версии без свесов крыши«Сандра 3«.
Также в версии с гаражом на 2 авто и без свесов крыши«Сандра 2«
Описание проекта: Стильный проект дома 171 м.кв. с гаражом, пятью жилыми комнатами, камином и террасой.
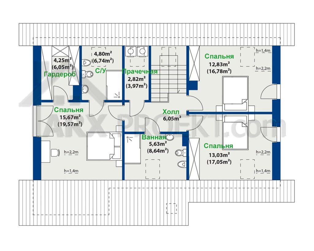
Эргономичное и четко разделенное жилое пространство состоит из дневной, ночной и хозяйственной зоны. Основной частью дома является гостиная, соединенная со столовой, из которой выходит большая терраса и кухня с кладовой. В дополнение к жилой площади на первом этаже находится комната, которая может быть использована для кабинета или спальни. В мансарде есть 3 спальни, ванная комната и прачечная. Самая большая спальня имеет собственную ванную комнату и гардероб. Большая топочная, подойдет для разного вида топлива и гараж для одного автомобиля расположены в хозяйственной части дома.
Проект дома «Сандра» подойдет для неглубоких участков (с небольшой длиной).
Компания Архпроект









