Название проекта : Ольвія
25,900грн - С мансардой
Общая площадь — 224,2 м2
Жилая площадь — 89,8 м2
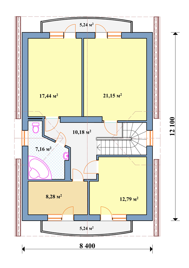
Габариты дома — 12,1 м (длина)
Габариты дома — 8,4 м (ширина)
Площадь застройки — 147,0 м2
Материал фундамента — сборные железобетонные блоки
Материал стен — газобетонные блоки , поротерм , кирпич
Материал перекрытия — железобетонные панели
Конструкция крыши — стропильная
Материал кровли — металлочерепица
Отделка фасада — штукатурка , камень
Отделка цокольного этажа — камень — плитка
Зеркальное отображение — да
Этажность — 2
Гараж — нет
Возможность заказать проект в другом материале — керамический блок , кирпич
Количество жилых комнат — 4
Бассейн — нет
Сауна — нет
Камин — да
Зимний сад — нет
Терраса — нет
Второй свет — нет
Комплектация проектирования архитектура , конструкция
Автор проекта: компания АRXproekt
Описание проекта: Проект дома 8м * 12 м с жилой мансардой. Дом простой в строительстве, но украшен деревянными элементами под крышей и белыми полосами по фасаду и вокруг окон. В цокольном этаже дома несколько вспомогательных помещений и топливная. Вход как с улицы, так и по лестнице с середины дома. На первом этаже кухня-столовая, просторная гостиная с камином, санузел и кладовая. Этажом выше — три спальных комнаты, гардероб и санузел.
Компания Архпроект






