Название проекта : Глорія
Акция 28,490грн - Двухэтажный
Общая площадь – 203,2 м²
Жилая площадь – 94,4 м²
Габариты дома – 13,5 м (длина)
Габариты дома – 16,5 м (ширина)
Материал фундамента — монолитный железобетон
Материал стен — газоблок
Материал перекрытия — монолитный железобетон
Конструкция крыши — стропильная
Материал кровли — металлочерепица
Отделка фасада — штукатурка, фасадный камень, дерево
Отделка цокольного этажа — штукатурка
Зеркальное отражение — да
Этажность — 2
Гараж — на 2 авто
Возможность заказать проект в другом материале — керамоблок, поротерм, кирпич
Количество жилых комнат — 5
Бассейны — нет
Сауна — нет
Камин — да
Зимний сад — нет
Терраса — да
Второй свет — нет
Комплектация проекта — архитектура, конструкция
Компанія АRXproekt
Проект дома «Глория 2» есть также в версии с гаражом на 1 авто «Глория«.
Опис проекту: Красивый проект двухэтажного дома 16х13 на 5 комнат, с гаражом для двух машин, камином и террасой в современном стиле.
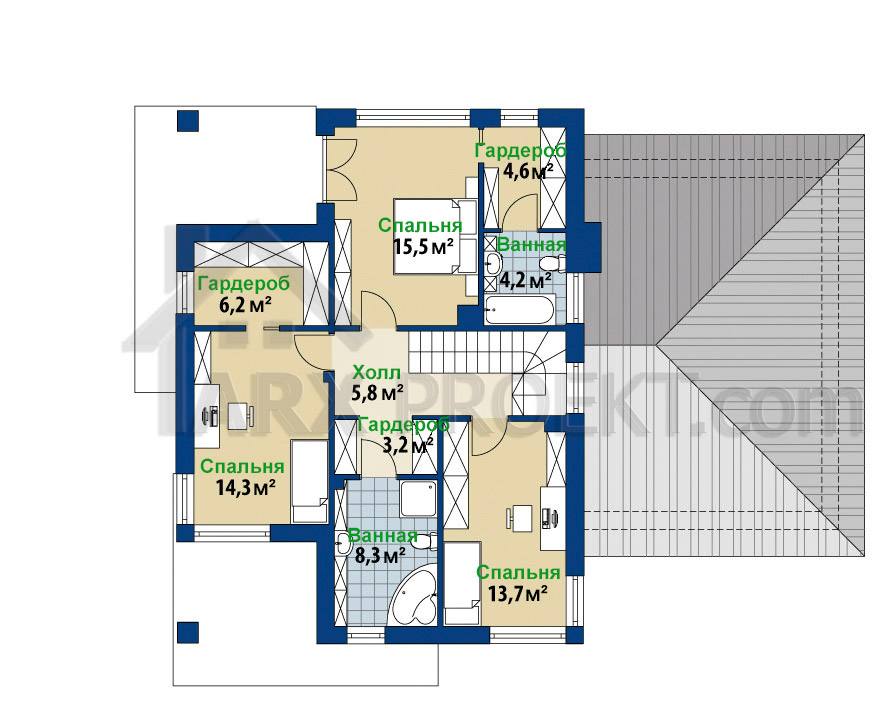
Этот дом спроектирован таким образом, чтобы каждый из его жителей имел максимальный комфорт в использовании. В вестибюле и зале есть место для встроенных шкафов, что позволит вам легко поддерживать порядок. Кухня открыта в столовую. Однако можно легко закрыть ее стеной или раздвижными дверями. Гостиная светлая и просторная. Из столовой и гостиной есть выход на частично крытую террасу. У лестницы, ближе к середине дома, есть камин. Вся функция первого этажа дополняется скрытым санузлом с душевой в небольшом коридоре, полезной кладовой, кабинетом и гаражом для двух машин с просторной топочной позади. Первый этаж является частной зоной домохозяйства. Он идеально соответствует потребностям семьи. Стоит отметить второй этаж: большую спальню с балконом, с отдельным гардеробом и ванной комнатой. Другие две комнаты тоже просторные, одна с собственным гардеробом. Есть также общая ванная комната и еще одна гардеробная.
Компанія Архпроект













