Название проекта : Діна
28,120грн - С мансардой
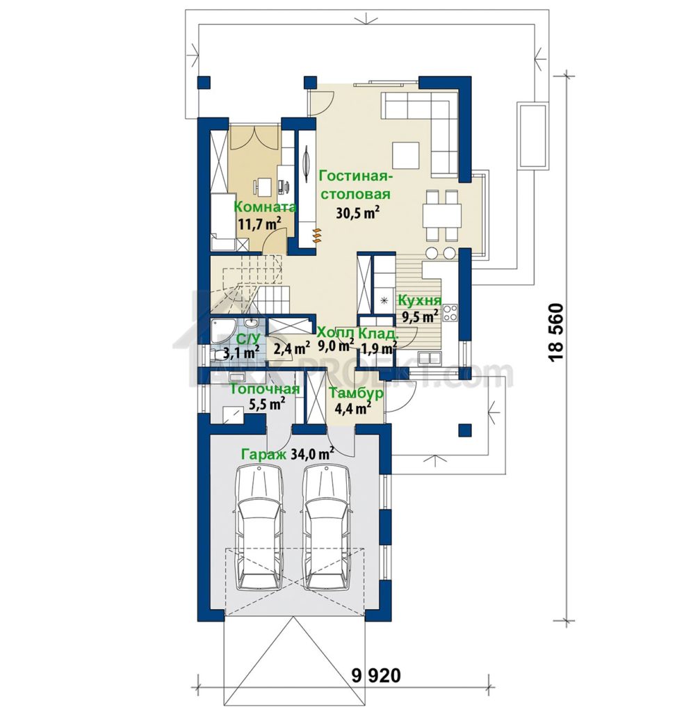
Общая площадь — 168,6 м²
Жилая площадь — 78,5 м²
Габариты дома — 18,56 м (длина)
Габариты дома — 9,92 м (ширина)
Материал фундамента — монолитный ленточный железобетон
Материал стен — газоблок
Материал перекрытия — монолитный железобетон
Конструкция крыши — стропильная
Материал кровли — металлочерепица
Отделка фасада — штукатурка, декоративный камень
Отделка цокольного этажа — фактурная штукатурка
Зеркальное отражение — да
Этажность — 1 + мансарда
Гараж — на два авто
Возможность заказать проект в другом материале — керамоблок, кирпич
Количество жилых комнат — 5
Бассейны — нет
Сауна — нет
Камин — да
Зимний сад — нет
Терраса — да
Второй свет — нет
Комплектация проекта — архитектура, конструкция
Компания АRXproekt
Описание проекта: Современный проект дома для узкого участка, с мансардой, гаражом на 2 авто, камином и террасой. Интересный, стильный дом с мансардой, для людей, которые любят выделяться из толпы. Внимание привлекают многочисленные остекления в дневной зоне. Функциональная компоновка включает открытое общее пространство, в котором гостиная соединена со столовой и кухней. В кухне есть небольшая проходная кладовая, которая объединяет ее с холлом. Столовая расположена в эркере с остеклением до пола. Из гостиной есть выход на террасу, которая частичная накрытая балконом.
На первом этаже также кабинет. С холла можно попасть в С/У с душевой. Также в холле есть ниша для шкафов, с которой можно еще сделать проход в топочную. Топочная расположена позади гаража на 2 авто.
На мансардном этаже есть три спальни, общая ванная комната и прачечная-сушилка. Над гаражом также чердак, который можно использовать как дополнительную комнату отдыха.
Компания Архпроект











