Название проекта : Брук
25,160грн - С плоской крышей
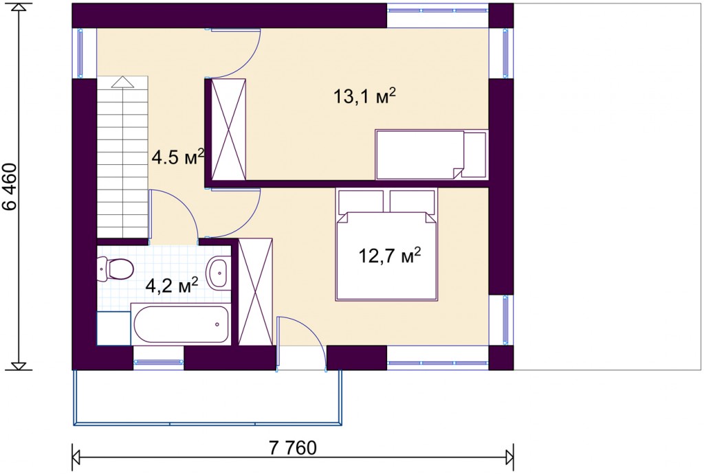
Общая площадь — 71,1 м2
Жилая площадь — 50,9 м2
Габариты дома — 7,9 м (длина )
Габариты дома — 6,6 м ( ширина )
Материал фундамента — монолитный железобетон.
Материал стен — кирпич
Материал перекрытия — сборный железобетон.
Конструкция крыши — плоская , сборный железобетон.
Отделка фасада — штукатурка , облицовочный кирпич , камень
Отделка цокольного этажа — камень — плитка
Зеркальное отображение — да
Количество этажей — 2
Гараж — открытый
Возможность заказать проект в другом материале — нет
Количество жилых комнат — 3
Бассейн — нет
Сауна — нет
Камин — да
Зимний сад — нет
Терраса — нет
Второй свет — нет
Комплектация проектирования архитектура , конструкция , коммуникации
Автор проекта : компания АRXproekt
Особенность: Маленький, простой в планировании и строительстве дом, стоимость возведения которого равен первому банковскому платежу на кредит квартиры такой же площади. Внешне дом современный и неординарный. Планирование — открытое. На первом этаже кухня переходит в гостиную, есть навес для авто, а на втором — две спальни и санузел.
Архпроект






