Название проекта : Білич
29,970грн - С мансардой
* Общая площадь — 276,7 м²
Общая площадь — 168,52 м² (без цокольного этажа)
* Жилая площадь — 74,1 м²
* Габариты дома — 10,0 м (длина)
* Габариты дома — 15,0 м (ширина)
* Материал фундамента — монолитный железобетон
* Материал стен — кирпич
* Материал перекрытия — монолитный железобетон
Конструкция крыши — стропильная
* Материал кровли — керамика
* Отделка фасада — декоративная штукатурка
Отделка цокольного этажа плиткой
Зеркальное отражение — да
Количество этажей — 2
Гараж — да
Возможность заказать проект в другом материале — Поротерм, газобетон
Сауна — да
Камин — да
Зимний сад — нет
Терраса — да
Второй свет — нет
Комплектация проекта — архитектура, конструкция
Автор проекта: компания АRXproekt
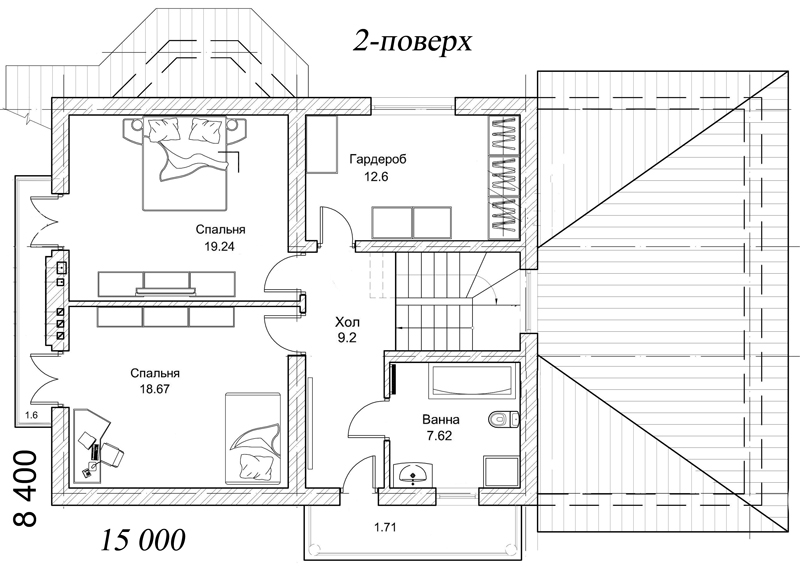
Описание проекта: Красивый дом на рельефе с жилой мансардой , гаражом и террасой. Запроектировано также помещения сауны, гараж на один автомобиль и камин. С гостиной есть выход на великолепную террасу, которая благодаря рельефу приподнятая и предоставляет прекрасный обзор во внутреннюю часть двора. Рядом с гостиной есть одна спальная комната. На верхнем этаже разместились две спальни с выходом на балкон, просторный гардероб и ванная комната.
Архпроект




