Название проекта : Алан

  25,900грн - С мансардой
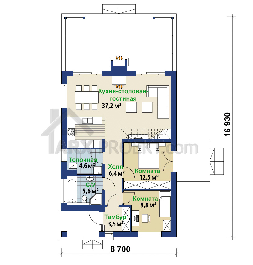
96,8 м²4 Кімнати1 Ванна Печатать Дзеркальна версія

Общая площадь — 96,8 м²
Жилая площадь — 59,5 м²
Габариты дома — 16,93 м (длина)
Габариты дома — 8,7 м (ширина)

Материал фундамента — монолитный железобетон
Материал стен — газоблок
Материал перекрытия — монолитное
Конструкция крыши — стропильная
Материал кровли — металлочерепица
Отделка фасада — штукатурка, дерево, декоративный камень
Отделка цокольного этажа — декоративный камень
Зеркальное отражение — да
Этажность — 1 + мансарда
Гараж — нет
Возможность заказать проект в другом материале — керамоблок, поротерм, кирпич
Количество жилых комнат — 4
Бассейны — нет
Сауна — нет
Камин — да
Зимний сад — нет
Терраса — так
Второй свет — да
Комплектация проекта — архитектура, конструкция
Компания АRXproekt

Проект дома «Алан» есть также в другой версии «Алан 2«.

Описание проекта: Компактный проект дома для одной семьи с 4 человек, зоной барбекю, камином и крытой террасой.
Дом с небольшой полезной площадью. Отличается необычным функциональным расположением. Сердцем дома является высокая гостиная (совмещена с кухней и столовой) с видом на антресоли. На первом этаже также есть санузел, две комнаты и топливная. На верхнем уровне расположена антресоль с возможностью отделения от него, например книжным шкафом и большая спальня.

Компания Архпроект

5/5 - (1 vote)

Проекты с подобной площадью